ザ・熊本ガーデンズ

設 備 仕 様

プライベート空間

ザ・熊本ガーデンズ 2LDK リビング・ダイニング
リビング・ダイニング
開放的な住まい

3.4mという階高を活かした、リビング・ダイニングの基準天井高は約2.65mを確保(15階は約2.85m)。間取りの広さだけでは表すことができない開放的な空間を演出します。さらに城見側住戸では、足元近くから大きく広がる全面ガラスを採用しました。一掃の開放感に加え、豊かな眺望を満喫することができます。

二重天井・二重床

高い階高を活かし、メンテナンス性に優れた二重天井・二重床を採用しました。防振ゴムで衝撃吸収性を高めた二重床と、床スラブ厚を250mm以上確保(一部除く)することで、上下階の気になる生活音低減に配慮しています。

戸境壁

住戸間の戸境壁には、厚さ約136mmの乾式耐火間仕切り壁を採用しました。耐火性とともに、高い遮音性を保つことで、隣り合う住戸への生活音の伝わりに配慮しています。

ザ・熊本ガーデンズ 2LDK リビング・ダイニングLow-E 複層ガラス ザ・熊本ガーデンズ 2LDK リビング・ダイニングLow-E 複層ガラス
Low-E 複層ガラス
Low-E 複層ガラス

遮熱タイプのLow-E複層ガラスを採用しました。特殊金属膜の効果で熱の侵入・放出を抑え、冷暖房の効率を高めるとともに、結露の発生を抑制します。

エコジョーズ

排気熱、潜熱回収システムにより、これまで未利用だった廃熱を活用し給湯効率を向上させた給湯器を採用しました。

LED照明器具

各戸の廊下等ダウンライトや共用部の照明器具は省エネルギー性に優れたLED仕様としています。

(出典:ザ・熊本ガーデンズ新築分譲販売パンフレット)

バウダールーム

ザ・熊本ガーデンズ 2LDK パウダールームの洗面カウンターと3面鏡
  • ザ・熊本ガーデンズ 2LDK 3面鏡裏の収納棚 ザ・熊本ガーデンズ 2LDK 3面鏡裏の収納
    三面鏡裏収納
  • ザ・熊本ガーデンズ 2LDK パウダールームのリネン庫
    リネン庫
  • ザ・熊本ガーデンズ 2LDK パウダールームの洗面カウンター横のタオルリング
    タオルリング
  • ザ・熊本ガーデンズ 2LDK パウダールームの洗面カウンターと3面鏡 ザ・熊本ガーデンズ 2LDK パウダールームの洗面カウンター人造大理石天板
    人造大理石天板
  • ザ・熊本ガーデンズ 2LDK パウダールームの洗面カウンター下の引出し収納
    引出し収納
  • ザ・熊本ガーデンズ 2LDK パウダールームの洗濯機置き場
    洗濯機置き場
中古物件のご案内
  • ご 成 約 済(2023年6月24日)
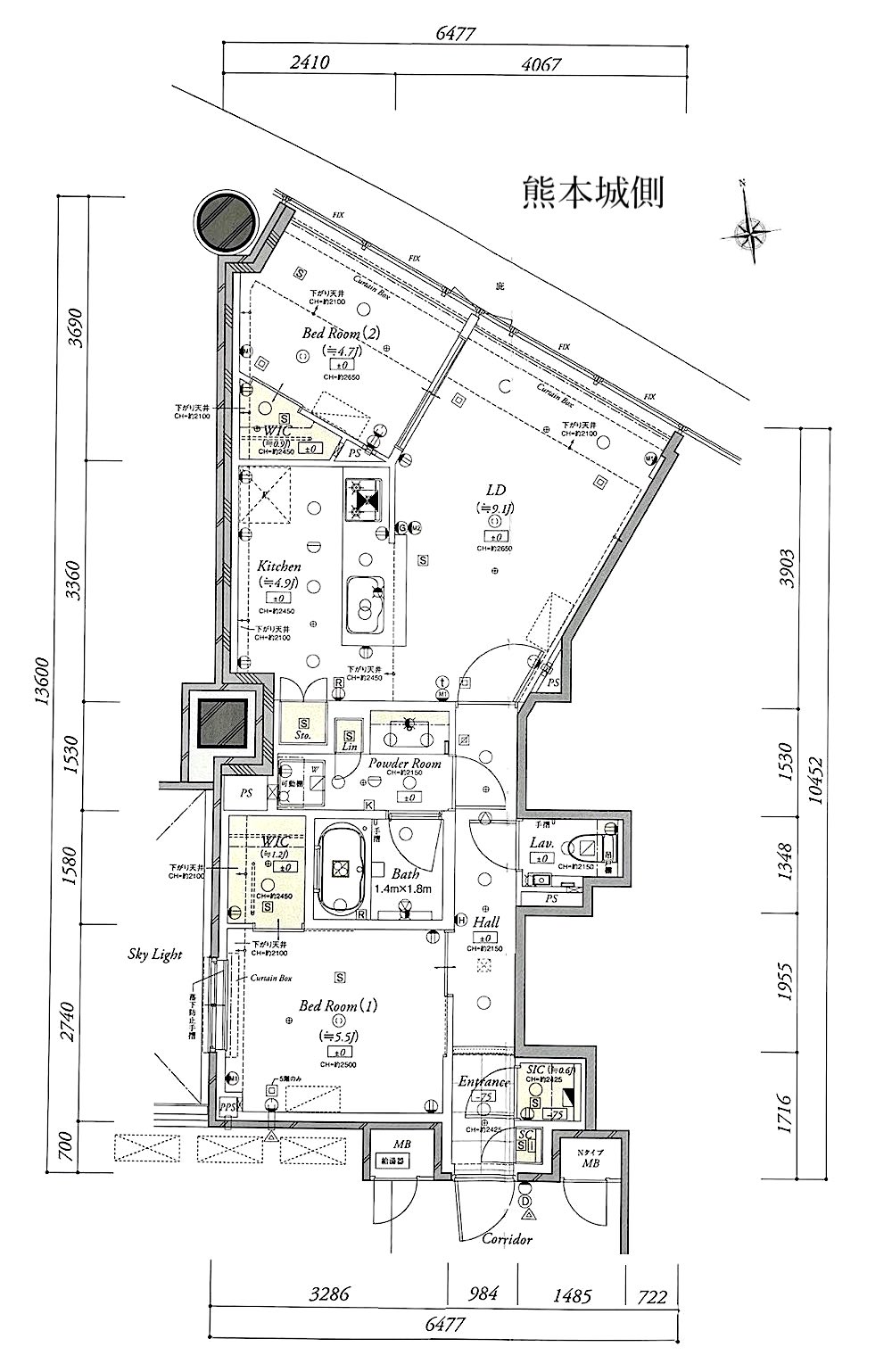
  • 2LDK +WIC+SIC

バスルーム

ザ・熊本ガーデンズ 2LDK バスルーム
  • ザ・熊本ガーデンズ 2LDK バスルームバスタブ
    バスタブ
  • ザ・熊本ガーデンズ 2LDK バスルーム浴室暖房換気乾燥機
    浴室暖房換気乾燥機
  • ザ・熊本ガーデンズ 2LDK バスルーム内の物干し
    洗濯ポール
  • ザ・熊本ガーデンズ 2LDK バスルームバスタブ
    浴 室
  • ザ・熊本ガーデンズ 2LDK バスルームバスタブカバー
    バスタブカバー
  • ザ・熊本ガーデンズ 2LDK バスルーム脱衣室リモコン
    脱衣室リモコン
  • ザ・熊本ガーデンズ 2LDK バスルームタッチ水栓
    タッチ水栓

キッチン

ザ・熊本ガーデンズ 2LDKキッチン
  • ザ・熊本ガーデンズ 2LDKキッチン・大型静音シンク
    大型静音シンク
  • ザ・熊本ガーデンズ 2LDKキッチン・3口ガラストップコンロ
    3口ガラストップコンロ
  • ザ・熊本ガーデンズ 2LDKキッチン・ステンレス製レンジフード
    ステンレス製レンジフード
  • ザ・熊本ガーデンズ 2LDKキッチン・浄水器付シャワー水栓
    浄水器付シャワー水栓
  • ザ・熊本ガーデンズ 2LDKキッチン・食器洗い乾燥機
    食器洗い乾燥機
  • ザ・熊本ガーデンズ 2LDKキッチン・キッチン収納棚
    キッチン収納棚
  • ザ・熊本ガーデンズ 2LDKキッチン・引出し収納
    引出し収納
  • ザ・熊本ガーデンズ 2LDKキッチン・ディスポーザー
    ディスポーザー

ト イ レ

  • ザ・熊本ガーデンズ 2LDK トイレ
    トイレ
  • ザ・熊本ガーデンズ 2LDK タンクレストイレ
    タンクレストイレ
  • ザ・熊本ガーデンズ 2LDKトイレ吊り戸棚
    トイレ吊り戸棚
  • ザ・熊本ガーデンズ 2LDK トイレ手すり
    トイレ手すり
  • ザ・熊本ガーデンズ 2LDK トイレ吊り戸棚の耐震ラッチ
    耐震ラッチ
  • ザ・熊本ガーデンズ 2LDK 手洗いカウンターボウル
    手洗いボウル
  • ザ・熊本ガーデンズ 2LDK トイレウォシュレットリモコン
    ウォシュレットリモコン

※掲載写真は2023年5月時点で販売中の住戸を撮影したものです